



(BTC)
(ETH)
(USDT)
(SOL)Продам большой участок земли в Центре с домом, ул.Флотская, р-н Рабочей.
9 сот приватизированной земли.
Кадастровые номера есть.
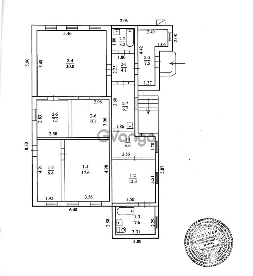
На участке есть дом 121 кв/м.
Есть все коммуникации (свет, вода, газ, централизованная канализация)
Дом под ремонт.
Участок ровный, огороженный.
На участке имеется гараж и хоз/постройка.
Отличное местоположение.
Рядом пр. Александра Поля, ул. Рабочая, Надежды Алексеенко, Философская, Юрия Савченко, Владимира Антоновича, пр. Леси Украинки.
Звоните, посмотрим, договоримся.