
- 6 022 239,65 руб.
- 3 282 909,53 грн.
- 75 000 $
- 64 990,73 €
- 1,1264
(BTC) - 36,6800
(ETH) - 75 000
(USDT) - 949,7277
(SOL) - 35 665 191,26 тенге
- 223 098,90 бел. р.
- 235 233,90 ₪
- 6 993 916,69 ₹ (INR)
- 56 664,60 £
- 4 545 977,57 ₱
- 2 455 312,18 ฿ (THB)
- 1 273 516,19 R
- 277 062 159,25 $ (COP)
- 386 677,52 R$
- 587 825,07 元
- 68 472 406,40 $ (CLP)
- 275 437,50 د.إ
- 281 515,13 ﷼
- 59 859,45 ₣
- 104 381 721,57 $ (ARS)
- 108 955,20 A$
- 22 332 717 857,14 Bs (VEF)
- 733 471,75 kr (NOK)
- 711 347,56 kr (SEK)
- 4 513 645,15 RD$ (DOP)
- 11 952 717,65 円
- 131 259,82 $ (NZD)
- 104 323,80 C$
- 1 343 809,66 $ (MXN)
- 34 878 929,96 ₡ (CRC)
- 516 450,01 圓
- Направление сделки: Продажа
- Вид объекта: Дом
- Контактное лицо: Алена
- Страна: Украина
- Город: Днепр (Днепропетровская область)
- Адрес: Дніпро, вул.Флотська
- Телефон: Показать
- Пожалуйста, сообщите автору, что Вы нашли это объявление на GVANGA.COM
- Задать вопрос
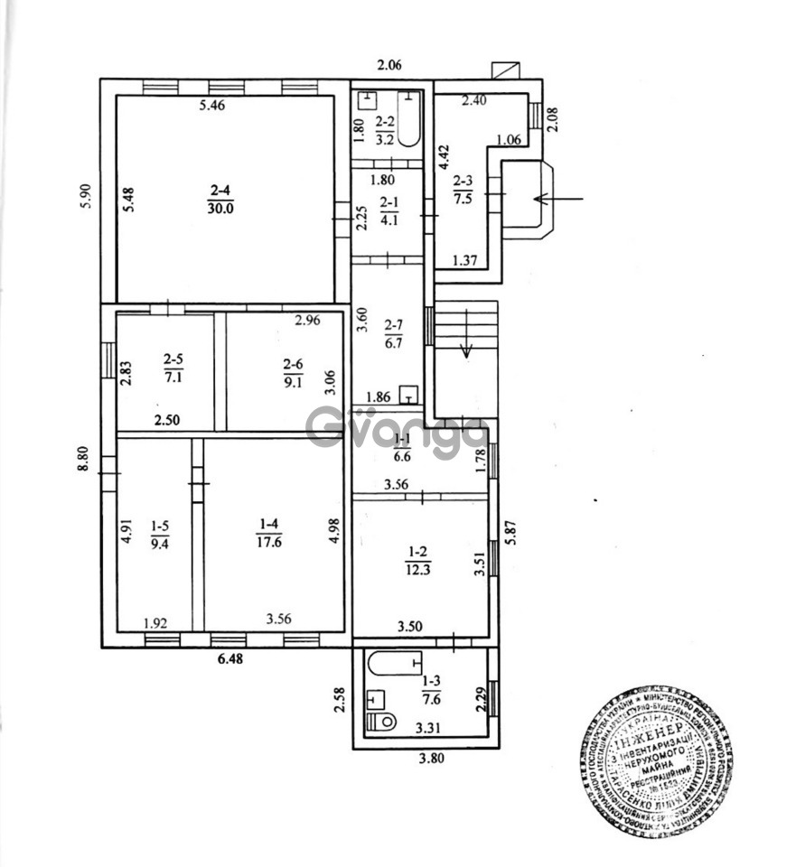
Продам дом с большим участком земли в Центре, ул.Флотская, р-н Рабочей.
Общая площадь дома 121 кв/м.
Есть все коммуникации (свет, вода, газ, централизованная канализация)
Дом под ремонт.
Есть 9 сот приватизированной земли.
Кадастровые номера есть.
Участок ровный, огороженный.
На участке имеется гараж и хоз/постройка.
Отличное местоположение.
Рядом пр. Александра Поля, ул. Рабочая, Надежды Алексеенко, Философская, Юрия Савченко, Владимира Антоновича, пр. Леси Украинки.
Звоните, посмотрим, договоримся.
Продам будинок з великою ділянкою землі у Центрі, вул.Флотська, р-н Робочої.
Загальна площа будинку 121 кв.м
Є всі комунікації (світло, вода, газ, централізована каналізація).
Будинок під ремонт.
Є 9 сотень приватизованої землі.
Кадастрові номери є.
Ділянка рівна, обгороджена.
На ділянці є гараж та госп/будівля.
Відмінне розташування.
Поруч пр. Олександра Поля, вул. Робоча, Надії Алексєєнко, Філософська, Юрія Савченка, Володимира Антоновича, ін. Лесі Українки.
Телефонуйте, подивимося, домовимось.
Метраж
Общая характеристика
Дополнительные параметры
Дополнительные условия
Посмотреть все объявления категории Дома, дачи, коттеджи, таунхаузы - Днепропетровская область
Посмотреть объявления по запросу: Украина, категория Недвижимость на других языках: Украинский
